À VENDRE VILLA 4 PIECES COMPOSÉE DE 3 CHAMBRES AVEC POTENTIEL D’AMÉNAGEMENT ET AVEC VUE MER, À SAINT-AYGULF

Ce bien n'est plus disponible à la vente.

Saint Aygulf
Réf. 2613
595 000 € *
Surface habitable : 193 m²
4 pièces
3 : chambres
Salles de bain : 2
Places de parking : 2

Plus en détails


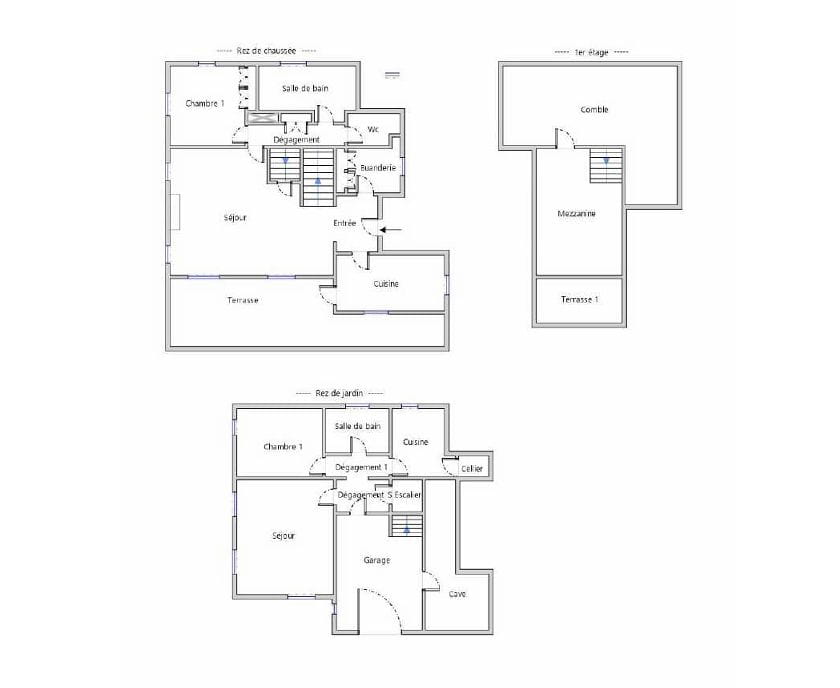
L’Agence du Cap vous propose cette villa vue mer de 193 m² à rénover répartit sur 3 niveaux.
L’entrée se fait de plain-pied, avec un salon/séjour lumineux offrant une vue sur la mer. Une belle hauteur sous plafond et une cheminée compléter cet espace de vie lumineux. La cuisine est séparée. Ce niveau comprend également deux chambres, une salle de bains, une buanderie et un WC indépendant.
A l’étage, une mezzanine pouvant faire office de chambre ou de bureau s’ouvre sur une terrasse avec vue mer.
Le niveau inférieur dispose d’un garage (pouvant être aménagé selon vos besoins), d’une grande pièce annexe, de deux chambres supplémentaires, d’une salle de bains et d’une seconde buanderie.
Un fort potentiel pour cette villa à fort caractère dans un environnement calme proche des plages et des commerces
N’hésitez pas à nous contacter pour plus d’informations ou pour organiser une visite dans les meilleurs délais.

Résumé


  • Nombre de pièces
    4
  • Nombre de chambres
    3
  • Surface habitable
    193 m²
  • Nombre d'étages
    1
  • Année de construction
    1980
  • Salle(s) de bain
    2
  • WC
    3
  • Places de parking
    2
  • Terrasse(s)
    1
  • Avec jardin
    Oui
  • Cheminée
    Oui
  • Standing
    Ancien
Ca m'intrigue
Vous souhaitez visiter ?

Remplissez le formulaire de contact ci-contre, nous vous recontacterons dans les plus brefs délais.

Echangeons ensemble
  • Ce champ n’est utilisé qu’à des fins de validation et devrait rester inchangé.
sea view property vue mer cote d'azur